Back to results


View all in Yass
For Salehouse
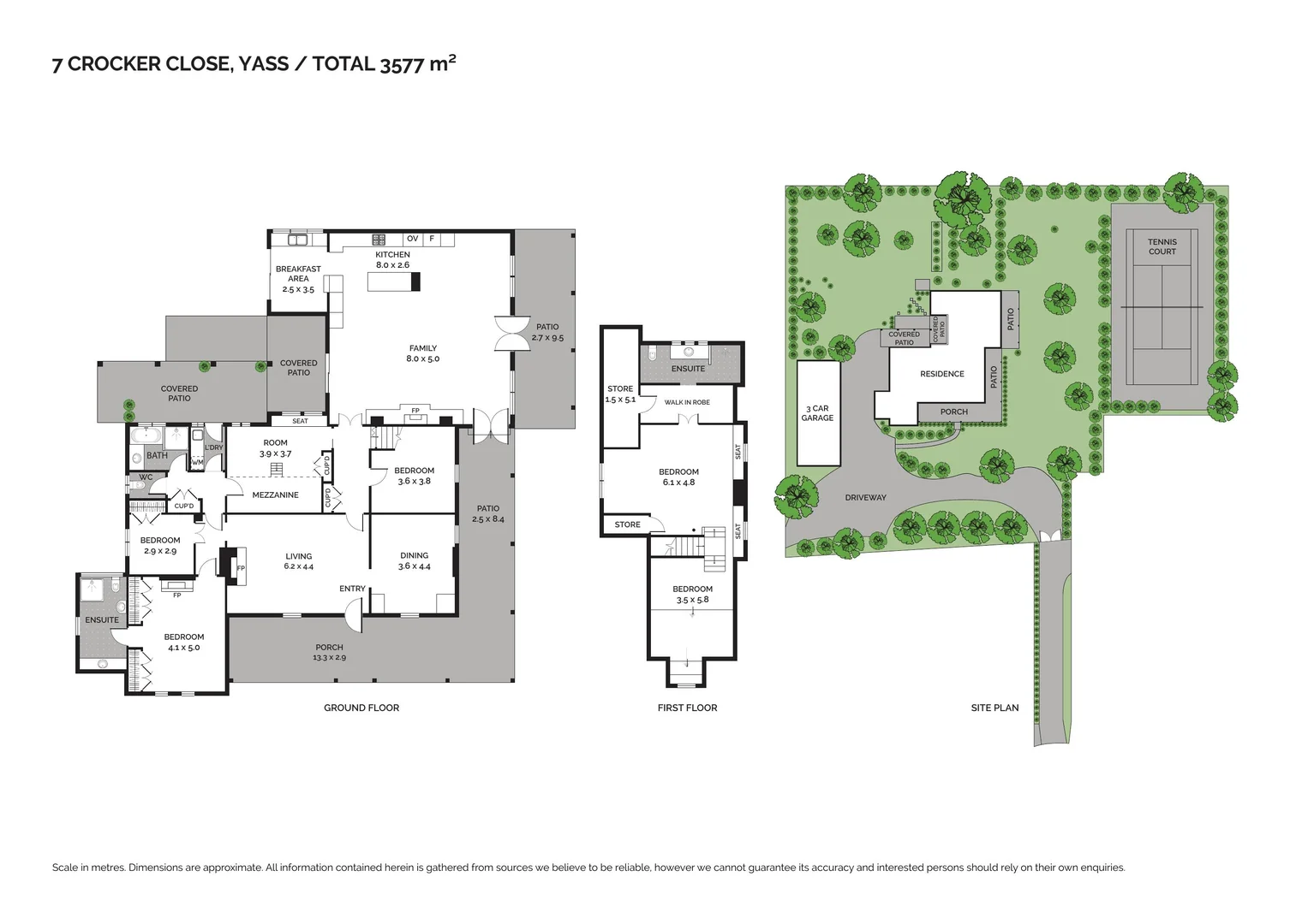
7 Crocker Close
Yass, NSW 2582, Australia
$1.49m
5 bed 0 bath 3 car4023m²



AI Property Assistant
Instant AI analysis — ask anything about this property
AI Valuation Estimate
$1.40m – $1.58m
Based on recent comparable sales in Yass
+6.2% suburb growth over 12 months
🏫
8.4/10
Schools
🚇
87/100
Walk Score
📈
+6.2%
Growth
🛡️
9.1/10
Safety
AI Property Assistant
Ask anything about this property
Hi! I'm your AI property assistant. Ask me anything about 7 Crocker Close — pricing, schools, transport, investment potential, and more.
Property Photos
About this property
5 bedroom house for Sale at 7 Crocker Close, Yass NSW 2582. View property photos, floor plans, local school catchments & lots more on Domain.com.au. 2020394553
Property Features
Location & Nearby
Loading map…
Approximate location shown. Contact agent for exact address.
AI Neighbourhood Insights
🏫
8.4/10
School Rating
Top catchment
🚇
87/100
Walk Score
Very walkable
📈
+6.2%
Capital Growth
Last 12 months
🏡
1.4%
Vacancy Rate
Very low
🛡️
9.1/10
Safety Score
Very safe
☕
8.8/10
Lifestyle Score
Excellent amenities
Property Details
- Property Type
- house
- Listing Type
- For Sale
- Bedrooms
- 5
- Bathrooms
- 0
- Parking
- 3
- Land Area
- 4023m²
- Listed
- 6 days ago
Within 5km
