Back to results

View all in Edmondson Park


For Salehouse
Lot 84 Percy Street
Edmondson Park, NSW 2174, Australia
$15.29m
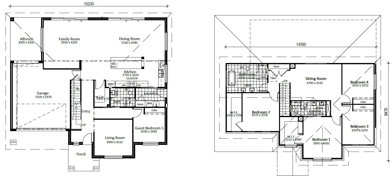
5 bed 0 bath 2 car309mΒ²


AI Property Assistant
Instant AI analysis β ask anything about this property
AI Valuation Estimate
$14.37m β $16.21m
Based on recent comparable sales in Edmondson Park
+6.2% suburb growth over 12 months
π«
8.4/10
Schools
π
87/100
Walk Score
π
+6.2%
Growth
π‘οΈ
9.1/10
Safety
AI Property Assistant
Ask anything about this property
Hi! I'm your AI property assistant. Ask me anything about Lot 84 Percy Street β pricing, schools, transport, investment potential, and more.
Property Photos
About this property
5 bedroom house for Sale at Lot 84 Percy Street, Edmondson Park NSW 2174. View property photos, floor plans, local school catchments & lots more on Domain.com.au. 2020363538
Property Features
Location & Nearby
Loading mapβ¦
Approximate location shown. Contact agent for exact address.
AI Neighbourhood Insights
π«
8.4/10
School Rating
Top catchment
π
87/100
Walk Score
Very walkable
π
+6.2%
Capital Growth
Last 12 months
π‘
1.4%
Vacancy Rate
Very low
π‘οΈ
9.1/10
Safety Score
Very safe
β
8.8/10
Lifestyle Score
Excellent amenities
Property Details
- Property Type
- house
- Listing Type
- For Sale
- Bedrooms
- 5
- Bathrooms
- 0
- Parking
- 2
- Land Area
- 309mΒ²
- Listed
- 3 days ago
Within 5km
Nearby Properties

outside
For Sale
$1.33mhouse
Modern Ground-Floor Living in the Heart of Edmondson Park
2/120 Passendale Road, Edmondson Park NSW 2174
101
LJ Hooker Leppington2 days ago
Ask AI about this property

outside
For Sale
$4.40mhouse
Prestons Green, The best opportunity to buy vacant land
400 Strathyre Drive, Prestons NSW 2170
000
Sydney Boutique Property2 days ago
Ask AI about this property

outside
For Sale
$730,000house
Buy Direct from the Land Developer Boutique Land Release | House & Land Options Available
Lot 18/80 Fourteenth Avenue, Austral NSW 2179
4002179292.2mΒ²
Swooper Real Estate2 days ago
Ask AI about this property