Back to results


View all in Elwood
For Salehouse
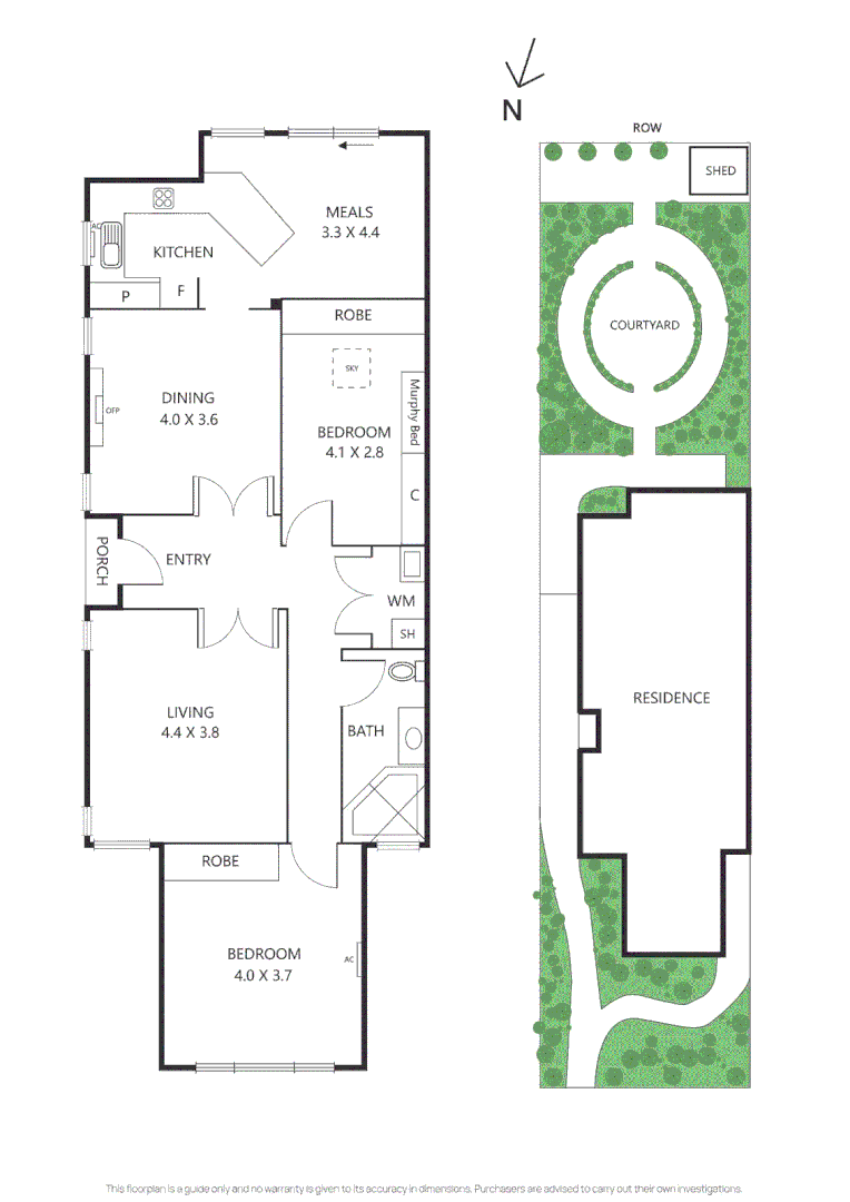
73 Byron Street
Elwood, VIC 3184, Australia
$1.29m
2 bed 1 bath 0 car



AI Property Assistant
Instant AI analysis β ask anything about this property
AI Valuation Estimate
$1.21m β $1.37m
Based on recent comparable sales in Elwood
+6.2% suburb growth over 12 months
π«
8.4/10
Schools
π
87/100
Walk Score
π
+6.2%
Growth
π‘οΈ
9.1/10
Safety
AI Property Assistant
Ask anything about this property
Hi! I'm your AI property assistant. Ask me anything about 73 Byron Street β pricing, schools, transport, investment potential, and more.
Property Photos
About this property
2 bedroom house for Sale at 73 Byron Street, Elwood VIC 3184. View property photos, floor plans, local school catchments & lots more on Domain.com.au. 2020701640
Property Features
Location & Nearby
Loading mapβ¦
Approximate location shown. Contact agent for exact address.
AI Neighbourhood Insights
π«
8.4/10
School Rating
Top catchment
π
87/100
Walk Score
Very walkable
π
+6.2%
Capital Growth
Last 12 months
π‘
1.4%
Vacancy Rate
Very low
π‘οΈ
9.1/10
Safety Score
Very safe
β
8.8/10
Lifestyle Score
Excellent amenities
Property Details
- Property Type
- house
- Listing Type
- For Sale
- Bedrooms
- 2
- Bathrooms
- 1
- Parking
- 0
- Listed
- 2 days ago
Within 5km
