Back to results


For Salehouse
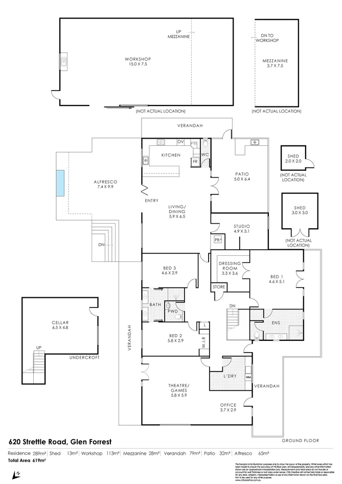
620 Strettle Road
Glen Forrest, WA 6071, Australia
Contact Agent
3 bed 0 bath 0 car289mΒ²



AI Property Assistant
Instant AI analysis β ask anything about this property
AI Valuation Estimate
Contact Agent β Contact Agent
Based on recent comparable sales in Glen Forrest
+6.2% suburb growth over 12 months
π«
8.4/10
Schools
π
87/100
Walk Score
π
+6.2%
Growth
π‘οΈ
9.1/10
Safety
AI Property Assistant
Ask anything about this property
Hi! I'm your AI property assistant. Ask me anything about 620 Strettle Road β pricing, schools, transport, investment potential, and more.
Property Photos
About this property
3 bedroom house for Sale at 620 Strettle Road, Glen Forrest WA 6071. View property photos, floor plans, local school catchments & lots more on Domain.com.au. 2020732823
Property Features
Location & Nearby
Loading mapβ¦
Approximate location shown. Contact agent for exact address.
AI Neighbourhood Insights
π«
8.4/10
School Rating
Top catchment
π
87/100
Walk Score
Very walkable
π
+6.2%
Capital Growth
Last 12 months
π‘
1.4%
Vacancy Rate
Very low
π‘οΈ
9.1/10
Safety Score
Very safe
β
8.8/10
Lifestyle Score
Excellent amenities
Property Details
- Property Type
- house
- Listing Type
- For Sale
- Bedrooms
- 3
- Bathrooms
- 0
- Parking
- 0
- Land Area
- 289mΒ²
- Listed
- 2 days ago