Back to results


For Salehouse
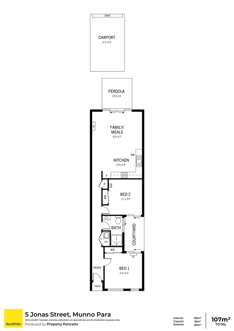
5 Jonas Street
Munno Para, SA 5115, Australia
$549,000
2 bed 1 bath 1 car135mΒ²



AI Property Assistant
Instant AI analysis β ask anything about this property
AI Valuation Estimate
$516,060 β $581,940
Based on recent comparable sales in Munno Para
+6.2% suburb growth over 12 months
π«
8.4/10
Schools
π
87/100
Walk Score
π
+6.2%
Growth
π‘οΈ
9.1/10
Safety
AI Property Assistant
Ask anything about this property
Hi! I'm your AI property assistant. Ask me anything about 5 Jonas Street β pricing, schools, transport, investment potential, and more.
Property Photos
About this property
2 bedroom house for Sale at 5 Jonas Street, Munno Para SA 5115. View property photos, floor plans, local school catchments & lots more on Domain.com.au. 2020698951
Property Features
Location & Nearby
Loading mapβ¦
Approximate location shown. Contact agent for exact address.
AI Neighbourhood Insights
π«
8.4/10
School Rating
Top catchment
π
87/100
Walk Score
Very walkable
π
+6.2%
Capital Growth
Last 12 months
π‘
1.4%
Vacancy Rate
Very low
π‘οΈ
9.1/10
Safety Score
Very safe
β
8.8/10
Lifestyle Score
Excellent amenities
Property Details
- Property Type
- house
- Listing Type
- For Sale
- Bedrooms
- 2
- Bathrooms
- 1
- Parking
- 1
- Land Area
- 135mΒ²
- Listed
- Today