Back to results


View all in South Yarra



For Salehouse
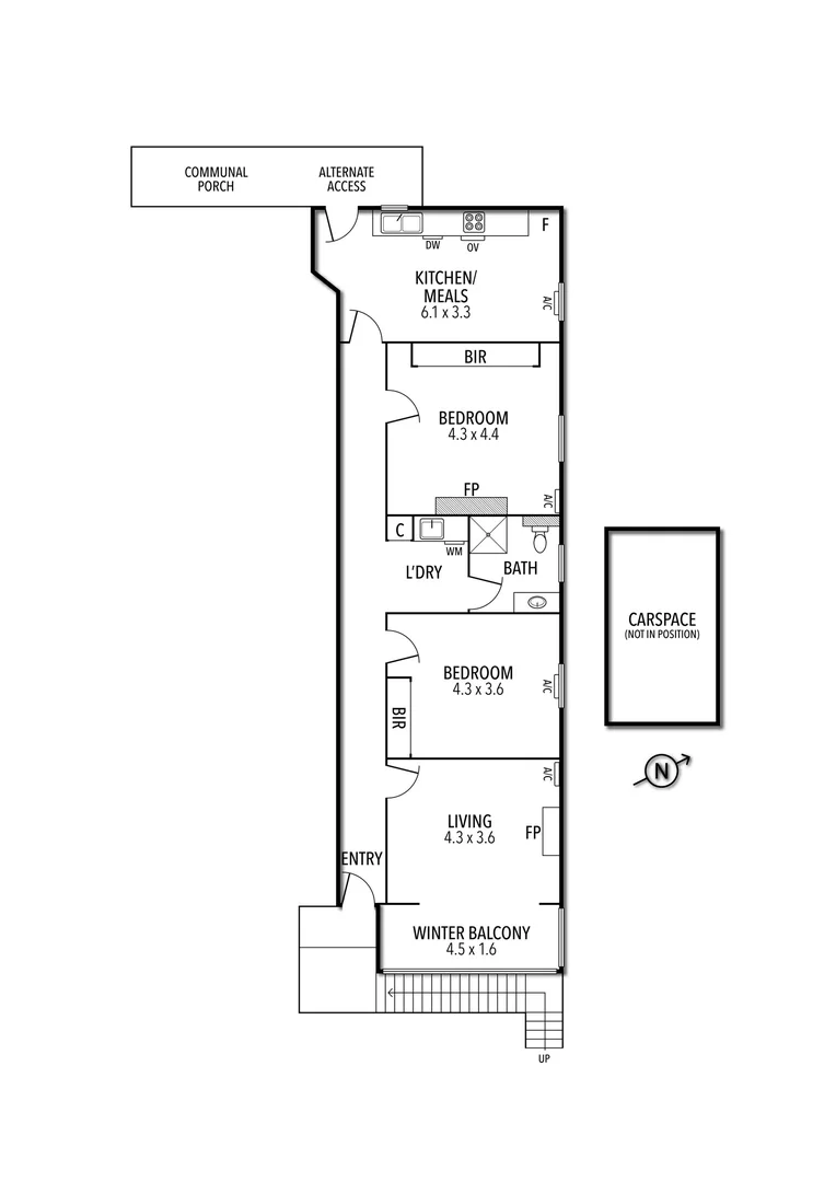
4/137 Osborne Street
South Yarra, VIC 3141, Australia
$1.05m
2 bed 0 bath 1 car



AI Property Assistant
Instant AI analysis β ask anything about this property
AI Valuation Estimate
$987,000 β $1.11m
Based on recent comparable sales in South Yarra
+6.2% suburb growth over 12 months
π«
8.4/10
Schools
π
87/100
Walk Score
π
+6.2%
Growth
π‘οΈ
9.1/10
Safety
AI Property Assistant
Ask anything about this property
Hi! I'm your AI property assistant. Ask me anything about 4/137 Osborne Street β pricing, schools, transport, investment potential, and more.
Property Photos
About this property
2 bedroom apartment for Sale at 4/137 Osborne Street, South Yarra VIC 3141. View property photos, floor plans, local school catchments & lots more on Domain.com.au. 2020648162
Property Features
Location & Nearby
Loading mapβ¦
Approximate location shown. Contact agent for exact address.
AI Neighbourhood Insights
π«
8.4/10
School Rating
Top catchment
π
87/100
Walk Score
Very walkable
π
+6.2%
Capital Growth
Last 12 months
π‘
1.4%
Vacancy Rate
Very low
π‘οΈ
9.1/10
Safety Score
Very safe
β
8.8/10
Lifestyle Score
Excellent amenities
Property Details
- Property Type
- house
- Listing Type
- For Sale
- Bedrooms
- 2
- Bathrooms
- 0
- Parking
- 1
- Listed
- 2 days ago
Within 5km
Nearby Properties

outside
For Sale
$1.60mhouse
Sky-high opulence in this Melbourne Square gem
6404/18 Hoff Boulevard, Southbank VIC 3006
301102.2mΒ²
Melcorp Real Estate2 days ago
Ask AI about this property

outside
For Sale
$290,000house
Features
South, Melbourne VIC 3205
100
Professionals First & Co2 days ago
Ask AI about this property

outside
For Sale
$550,000house
Two king sized bedrooms plus study
3/319 Barkly Street, Elwood VIC 3184
201125mΒ²
Jellis Craig Elwood2 days ago
Ask AI about this property

outside
For Sale
$820,000house
Features
7103/228 La Trobe Street, Melbourne VIC 3000
201
APG ESTATE2 days ago
Ask AI about this property