Back to results


View all in Glen Iris

For Salehouse
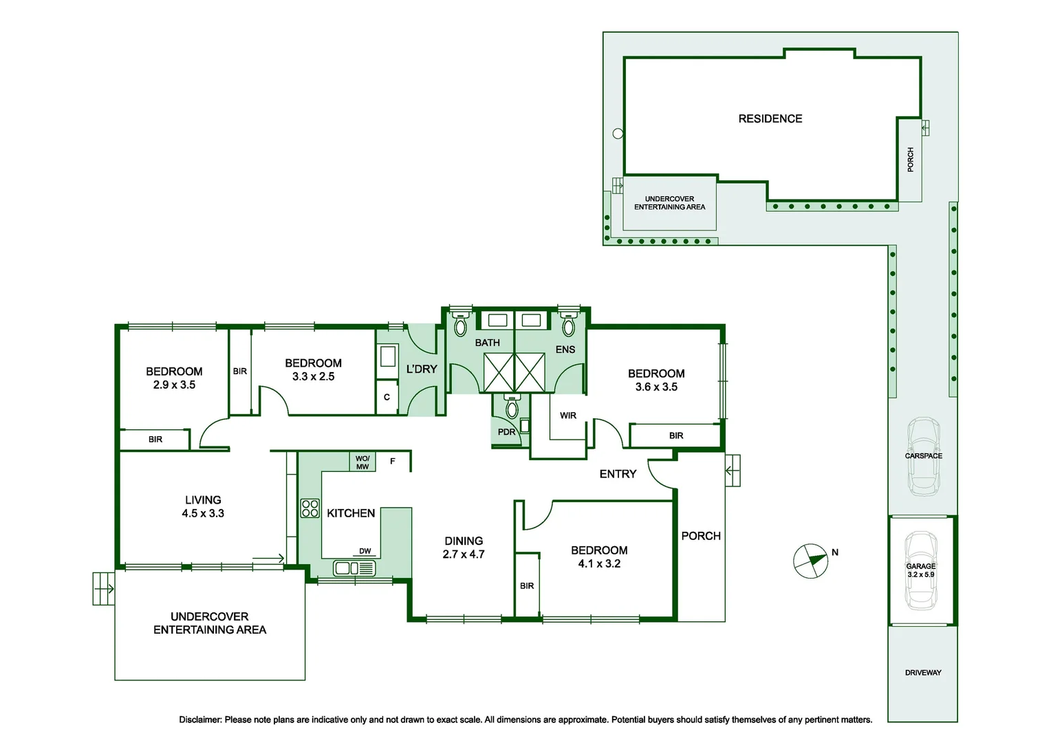
2/59 Maitland Street
Glen Iris, VIC 3146, Australia
$1.80m
4 bed 2 bath 2 car



AI Property Assistant
Instant AI analysis β ask anything about this property
AI Valuation Estimate
$1.69m β $1.91m
Based on recent comparable sales in Glen Iris
+6.2% suburb growth over 12 months
π«
8.4/10
Schools
π
87/100
Walk Score
π
+6.2%
Growth
π‘οΈ
9.1/10
Safety
AI Property Assistant
Ask anything about this property
Hi! I'm your AI property assistant. Ask me anything about 2/59 Maitland Street β pricing, schools, transport, investment potential, and more.
Property Photos
About this property
4 bedroom townhouse for Sale at 2/59 Maitland Street, Glen Iris VIC 3146. View property photos, floor plans, local school catchments & lots more on Domain.com.au. 2020599401
Property Features
Location & Nearby
Loading mapβ¦
Approximate location shown. Contact agent for exact address.
AI Neighbourhood Insights
π«
8.4/10
School Rating
Top catchment
π
87/100
Walk Score
Very walkable
π
+6.2%
Capital Growth
Last 12 months
π‘
1.4%
Vacancy Rate
Very low
π‘οΈ
9.1/10
Safety Score
Very safe
β
8.8/10
Lifestyle Score
Excellent amenities
Property Details
- Property Type
- house
- Listing Type
- For Sale
- Bedrooms
- 4
- Bathrooms
- 2
- Parking
- 2
- Listed
- 3 days ago
Within 5km
Nearby Properties

outside
For Sale
$900,000house
Contemporary Townhouse Living Moments from Malvern East
Malvern, East VIC 3145
400
Professionals First & Co2 days ago
Ask AI about this property

outside
For Sale
$975,000house
Prime Malvern East Opportunity on 857mΒ² with Endless Potential
611 Waverley Road, Malvern East VIC 3145
302857mΒ²
Buxton Ashburton2 days ago
Ask AI about this property