Back to results


View all in Elwood



For Salehouse
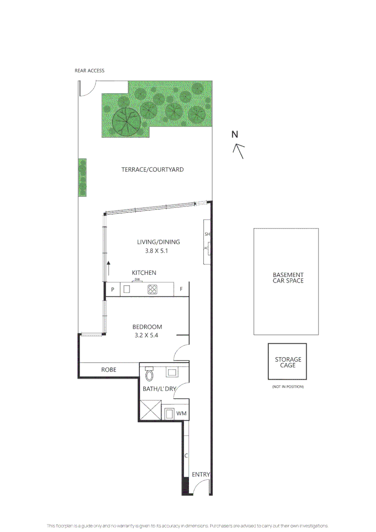
G12/2 Kingsley Street
Elwood, VIC 3184, Australia
1 bed 0 bath 1 car



AI Property Assistant
Instant AI analysis β ask anything about this property
AI Valuation Estimate
$564,000 β $636,000
Based on recent comparable sales in Elwood
+6.2% suburb growth over 12 months
π«
8.4/10
Schools
π
87/100
Walk Score
π
+6.2%
Growth
π‘οΈ
9.1/10
Safety
AI Property Assistant
Ask anything about this property
Hi! I'm your AI property assistant. Ask me anything about G12/2 Kingsley Street β pricing, schools, transport, investment potential, and more.
Property Photos
Property Features
Location & Nearby
Loading mapβ¦
Approximate location shown. Contact agent for exact address.
AI Neighbourhood Insights
π«
8.4/10
School Rating
Top catchment
π
87/100
Walk Score
Very walkable
π
+6.2%
Capital Growth
Last 12 months
π‘
1.4%
Vacancy Rate
Very low
π‘οΈ
9.1/10
Safety Score
Very safe
β
8.8/10
Lifestyle Score
Excellent amenities
Property Report
Traffic, zoning, flood risk & more
Property Details
- Property Type
- house
- Listing Type
- For Sale
- Bedrooms
- 1
- Bathrooms
- 0
- Parking
- 1
- Listed
- 5 days ago
Within 5km
Nearby Properties

outside
For Sale
$1.45mhouse
Features
120 Maleny Kenilworth Road, Maleny QLD 4552
0059793mΒ²
Maleny & Hinterland Real EstateToday
Ask AI about this property

outside
For Sale
$940,000house
Two Homes Under One Roof!
3 Tingara Court, Clifton Springs VIC 3222
532585mΒ²
Stockdale & Leggo DrysdaleYesterday
Ask AI about this property

outside
For Sale
$835,000house
Features
59/31 Archipelago Street, Pacific Pines QLD 4211
32191mΒ²
REMAX Next InternationalToday
Ask AI about this property

outside
For Sale
$295,000house
SEIZE YOUR SLICE OF CENTRAL DRYSDALE.
2/39 Serene Terrace, Drysdale VIC 3222
0003222301mΒ²
Stockdale & Leggo DrysdaleYesterday
Ask AI about this property