Back to results


View all in Brunswick West

For Salehouse
951 Park Street
Brunswick West, VIC 3055, Australia
Contact Agent
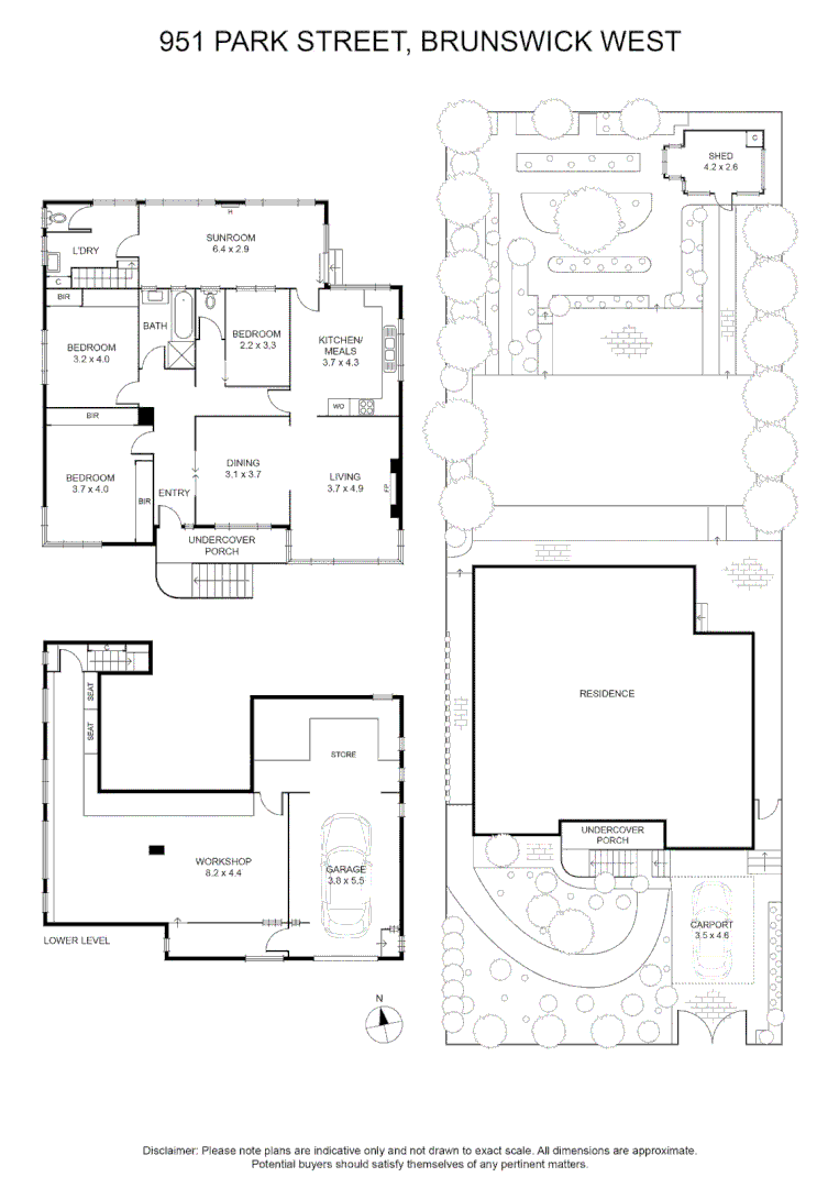
3 bed 1 bath 2 car621mΒ²



AI Property Assistant
Instant AI analysis β ask anything about this property
AI Valuation Estimate
Contact Agent β Contact Agent
Based on recent comparable sales in Brunswick West
+6.2% suburb growth over 12 months
π«
8.4/10
Schools
π
87/100
Walk Score
π
+6.2%
Growth
π‘οΈ
9.1/10
Safety
AI Property Assistant
Ask anything about this property
Hi! I'm your AI property assistant. Ask me anything about 951 Park Street β pricing, schools, transport, investment potential, and more.
Property Photos
About this property
3 bedroom house for Sale at 951 Park Street, Brunswick West VIC 3055. View property photos, floor plans, local school catchments & lots more on Domain.com.au. 2020694677
Property Features
Location & Nearby
Loading mapβ¦
Approximate location shown. Contact agent for exact address.
AI Neighbourhood Insights
π«
8.4/10
School Rating
Top catchment
π
87/100
Walk Score
Very walkable
π
+6.2%
Capital Growth
Last 12 months
π‘
1.4%
Vacancy Rate
Very low
π‘οΈ
9.1/10
Safety Score
Very safe
β
8.8/10
Lifestyle Score
Excellent amenities
Property Details
- Property Type
- house
- Listing Type
- For Sale
- Bedrooms
- 3
- Bathrooms
- 1
- Parking
- 2
- Land Area
- 621mΒ²
- Listed
- 3 days ago
Within 5km
Nearby Properties

outside
For Sale
$820,000house
Features
7103/228 La Trobe Street, Melbourne VIC 3000
201
APG ESTATE2 days ago
Ask AI about this property

outside
For Sale
Contact Agenthouse
Expressions of Interest closing Thursday 30th April at 5pm
26 Salisbury Street, Coburg VIC 3058
542
WHITEFOX Real Estate - Northside2 days ago
Ask AI about this property