Back to results


For Salehouse
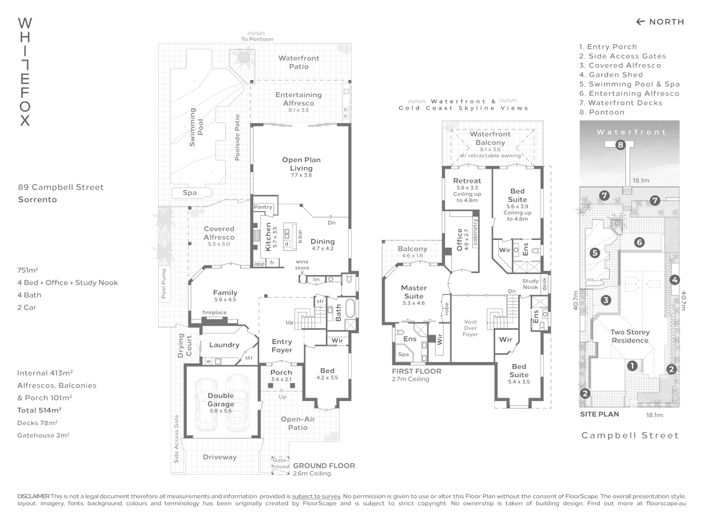
89 Campbell Street
Sorrento, QLD 4217, Australia
Contact Agent
4 bed 4 bath 2 car514m²



AI Property Assistant
Instant AI analysis — ask anything about this property
AI Valuation
Price Not Disclosed
Contact the agent for pricing details on this property.
AI Property Assistant
Ask anything about this property
Hi! I'm your AI property assistant. Ask me anything about 89 Campbell Street — pricing, schools, transport, investment potential, and more.
Property Photos
About this property
4 bedroom house for Sale at 89 Campbell Street, Sorrento QLD 4217. View property photos, floor plans, local school catchments & lots more on Domain.com.au. 2020575026
Property Features
Location & Nearby
Loading map…
Approximate location shown. Contact agent for exact address.
AI Neighbourhood Insights
🏫
8.4/10
School Rating
Top catchment
🚇
87/100
Walk Score
Very walkable
📈
+6.2%
Capital Growth
Last 12 months
🏡
1.4%
Vacancy Rate
Very low
🛡️
9.1/10
Safety Score
Very safe
☕
8.8/10
Lifestyle Score
Excellent amenities
Property Details
- Property Type
- house
- Listing Type
- For Sale
- Bedrooms
- 4
- Bathrooms
- 4
- Parking
- 2
- Land Area
- 514m²
- Listed
- 2 days ago