Back to results


View all in Sandringham



For Salehouse
60 Spring Street
Sandringham, VIC 3191, Australia
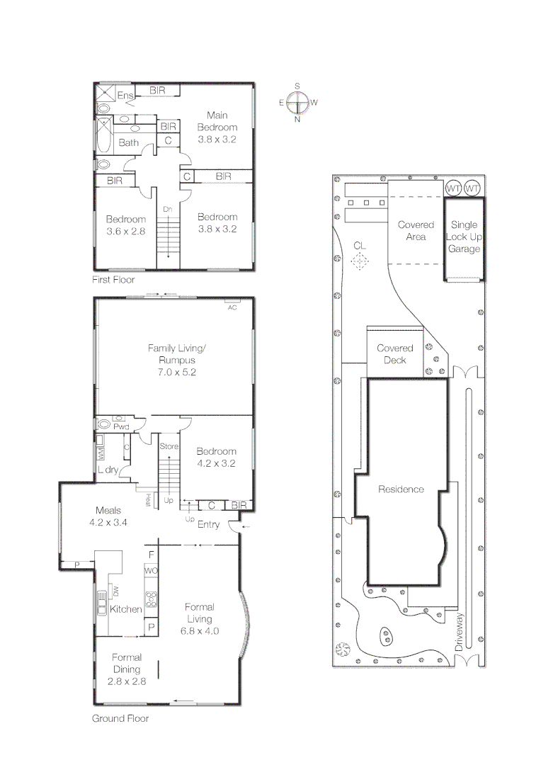
4 bed 2 bath 2 car697mΒ²



AI Property Assistant
Instant AI analysis β ask anything about this property
AI Valuation Estimate
$1.74m β $1.96m
Based on recent comparable sales in Sandringham
+6.2% suburb growth over 12 months
π«
8.4/10
Schools
π
87/100
Walk Score
π
+6.2%
Growth
π‘οΈ
9.1/10
Safety
AI Property Assistant
Ask anything about this property
Hi! I'm your AI property assistant. Ask me anything about 60 Spring Street β pricing, schools, transport, investment potential, and more.
Property Photos
Property Features
Location & Nearby
Loading mapβ¦
Approximate location shown. Contact agent for exact address.
AI Neighbourhood Insights
π«
8.4/10
School Rating
Top catchment
π
87/100
Walk Score
Very walkable
π
+6.2%
Capital Growth
Last 12 months
π‘
1.4%
Vacancy Rate
Very low
π‘οΈ
9.1/10
Safety Score
Very safe
β
8.8/10
Lifestyle Score
Excellent amenities
Property Details
- Property Type
- house
- Listing Type
- For Sale
- Bedrooms
- 4
- Bathrooms
- 2
- Parking
- 2
- Land Area
- 697mΒ²
- Listed
- Today
Within 5km
Nearby Properties

outside
For Sale
$325,000house
Features
16 Elliot Steet, Katherine NT 0850
302836mΒ²
Elders Real Estate KatherineToday
Ask AI about this property

outside
For Sale
$591,101house
HOUSE & LAND PACKAGE - HAVE YOUR DREAM HOME BUILT BY VICTORIAS LARGEST BUILDER OF STEEL FRAME HOMES
Lot 2 School Road, Clunes VIC 3370
002159.78mΒ²
JG King HomesToday
Ask AI about this property

outside
For Sale
$4.70mhouse
Features
16 Plane Street, Lucindale SA 5272
3111024mΒ²
Elders South East RLA 62833Today
Ask AI about this property

outside
For Sale
$19.00mhouse
Features
9 Hayward Road, Lake Macdonald QLD 4563
42222400mΒ²
Krause Property GroupToday
Ask AI about this property