Back to results


View all in Burleigh Heads



For Salehouse
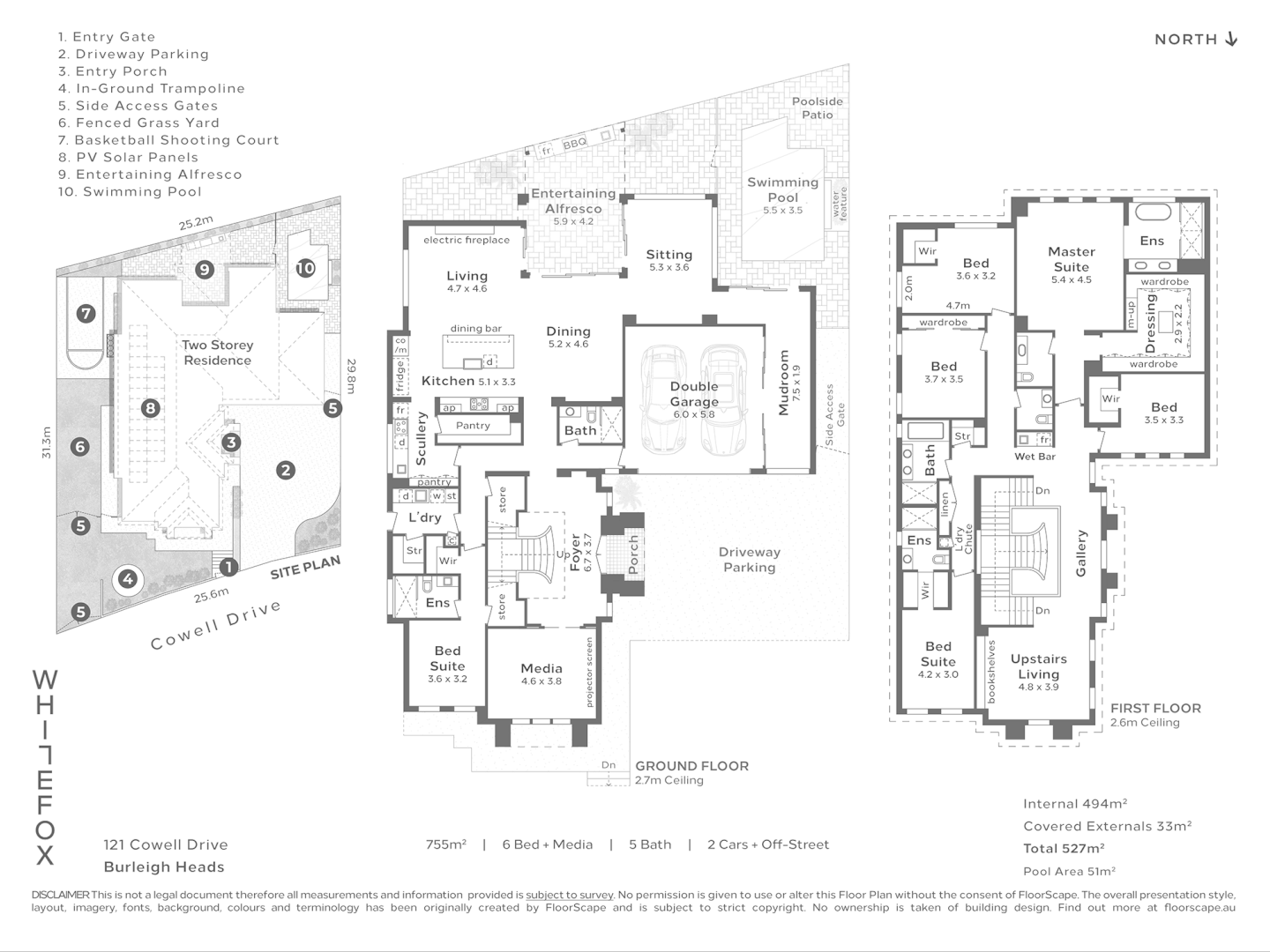
121 Cowell Drive
Burleigh Heads, QLD 4220, Australia
6 bed 0 bath 2 car494m²



AI Property Assistant
Instant AI analysis — ask anything about this property
AI Valuation
Price Not Disclosed
Contact the agent for pricing details on this property.
AI Property Assistant
Ask anything about this property
Hi! I'm your AI property assistant. Ask me anything about 121 Cowell Drive — pricing, schools, transport, investment potential, and more.
Property Photos
Property Features
Location & Nearby
Loading map…
Approximate location shown. Contact agent for exact address.
AI Neighbourhood Insights
🏫
8.4/10
School Rating
Top catchment
🚇
87/100
Walk Score
Very walkable
📈
+6.2%
Capital Growth
Last 12 months
🏡
1.4%
Vacancy Rate
Very low
🛡️
9.1/10
Safety Score
Very safe
☕
8.8/10
Lifestyle Score
Excellent amenities
Property Report
Traffic, zoning, flood risk & more
Property Details
- Property Type
- house
- Listing Type
- For Sale
- Bedrooms
- 6
- Bathrooms
- 0
- Parking
- 2
- Land Area
- 494m²
- Listed
- 5 days ago
Within 5km
Nearby Properties

outside
For Sale
$1.45mhouse
Features
120 Maleny Kenilworth Road, Maleny QLD 4552
0059793m²
Maleny & Hinterland Real EstateToday
Ask AI about this property

outside
For Sale
$940,000house
Two Homes Under One Roof!
3 Tingara Court, Clifton Springs VIC 3222
532585m²
Stockdale & Leggo DrysdaleYesterday
Ask AI about this property

outside
For Sale
$835,000house
Features
59/31 Archipelago Street, Pacific Pines QLD 4211
32191m²
REMAX Next InternationalToday
Ask AI about this property

outside
For Sale
$295,000house
SEIZE YOUR SLICE OF CENTRAL DRYSDALE.
2/39 Serene Terrace, Drysdale VIC 3222
0003222301m²
Stockdale & Leggo DrysdaleYesterday
Ask AI about this property